В процессе подготовки к ремонту я понял одну великую истину. Чтобы ремонт прошёл гладко, нужно либо с помощью дизайнера, либо самостоятельно продумать всё. Всё, это значит абсолютно всё.
Нужно чётко понимать, какая у вас будет кухня и какая в ней техника. Вы должны выбрать всю мебель, или хотя бы понимать размер кровати, высоту прикроватных тумбочек, где будут стоять шкафы, диваны, камины, где будут стоять или висеть телевизоры, даже какую акустику вы хотите, колонки для домашнего кинотеатра. Нужно понимать, что и где будет стоять в ванной, где и какой будет полотенцесушитель.
Зачем, спросите вы? Почему нельзя всё это сделать потом или в середине ремонта?
Это всё нужно, чтобы электрик понимал, где у вас будут розетки, выключатели, компьютерные розетки (о них все почему-то забывают, а сейчас разве что чайник к роутеру не подключают) и телевизионные розетки. А также где и какое освещение вы будете делать. Провода для задних колонок 5.1 вы же не в плинтусе и не по полу пускать будете? Вы сделаете аккуратные розетки в стене. Поэтому до ремонта нужно представлять, как будет выглядеть ваша квартира после ремонта, уже с мебелью.
Что же делать? Я поискал в интернете софт для дизайна помещений. Посмотрел большое количество. В итоге выбрал два варианта: Autodesk Homestyler и Planoplan.
Оба онлайн-редактора, нужные функции доступны бесплатно. Очень просты в освоении, любая домохозяйка разберётся. Мне больше по душе последний вариант, потому что там есть русские окна и есть толстый клиент, который можно поставить на компьютер. Так меньше тормозит. В редакторе можно походить по квартире и посмотреть, как всё будет выглядеть.
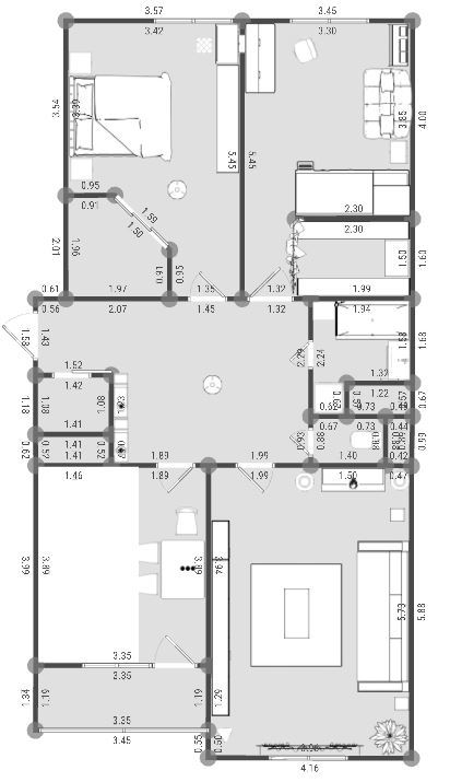
Вот в таком редакторе мы с женой и сделали полный дизайн квартиры. Расставили мебель и продумали остальные мелочи. Остальные программы мне не понравились, в основном из-за своей сложности и навороченности.
Имея такой план, его можно показать и рабочим, и электрику, чтобы они понимали, что вы хотите в итоге. Можно даже распечатать и дать им в руки.
Получившийся общий план:




